OCEANA BUCERIAS
Quality and Lifestyle

Situated at the most elevated point in the heart of the desirable Zona Dorada, just two blocks to the long sandy beach of Bucerias, OCEANA BUCERIAS is in advanced stages of construction. It’s sloped terrain lends to a terraced placement of two handsome buildings, providing for varied bay, “pueblo” and mountain views with all the facets of the neighbourhood visible from deep, relaxing terraces.
This collection of 51 condominiums is a complete residential experience with the best value-added features and amenities, where owners have access to all elements of the Bucerias and Riviera Nayarit lifestyle—day and night—within footsteps of popular cafes, restaurants, boutiques and galleries.
Features & Amenities
High Standards and Modern Amenities
OCEANA BUCERIAS answers to the living trends of the zone, providing a variety of two and three-bedroom floor plans—some with an added flex room, and all with two-and-a-half or three bathrooms. Three elevators and two lobbies provide easy, level access to each unit.
The developer continues with the use of solid walls in every inch of the condo—using premium, innovative Hebel cellular block. Each thoughtfully planned condo is detailed with high-grade finishes of European PVC window systems, porcelain flooring, granite, marble, luxurious bathroom and kitchen fittings, tropical wood carpentry and many other details. Superior architectural detailing, velvet-smooth walls, indirect lighting, tropical hardwood, natural stone, trusted brand fixtures, accessories and appliances provide aesthetics, style and comfort.
This is the canvas to personalize your home with the resources of art and design that abound in the community
The pinnacle of its amenities is the xx-metre roof top pool, where all owners will have exclusivity to 180-degree views of Banderas Bay and over 6,000-square feet of luxurious recreation space. A second rooftop area will provide a quiet oasis of lounge spaces. A fully equipped workout room, full-building filtration system and one underground parking spot for most units add convenience and value.
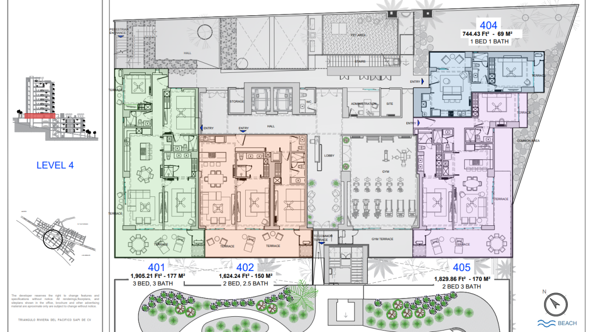
UNIT LOCATOR
CONTACT

Victoria L. Pratt
Mobile: +52 322 779 9283
victoria@timothyrealestategroup.com
Office: +52 329 298 1860
USA / Canada: 310 356 6514















































































